Physical Address
304 North Cardinal St.
Dorchester Center, MA 02124
Physical Address
304 North Cardinal St.
Dorchester Center, MA 02124

Trong các công trình hiện đại, Vách Ngăn Vệ Sinh đóng vai trò quan trọng nhằm đảm bảo sự tiện nghi, riêng tư và thẩm mỹ cho không gian sử dụng chung. Để lựa chọn và lắp đặt Vách Ngăn Vệ Sinh phù hợp, người dùng cần quan tâm đến nhiều yếu tố khác nhau như Tiêu Chuẩn, Quy Định, Kích Thước, Độ Dày, Vật Liệu, Độ Bền, Màu Sắc, Phụ Kiện cũng như Tiêu Chuẩn Kỹ Thuật và quy trình Lắp Đặt. Bài viết dưới đây sẽ giúp bạn hiểu rõ từng yếu tố trên, góp phần lựa chọn giải pháp hoàn hảo nhất.
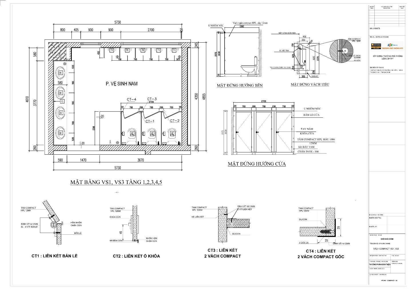
Tiêu chuẩn vách ngăn vệ sinh đóng vai trò vô cùng quan trọng trong việc thiết kế và xây dựng các không gian vệ sinh công cộng. Kích thước tiêu chuẩn cho vách tiểu đứng thường là 450mm x 1220mm và 600mm x 1220mm, với các tấm vách compact có kích thước cao 1220mm x 1830mm và 1530mm x 1830mm. Sự lựa chọn kích thước này nhằm đảm bảo sự thoải mái và tiện nghi cho người sử dụng.
Chiều cao tổng thể của hệ thống vách ngăn toilet tiêu chuẩn ở Việt Nam dao động từ 1970mm đến 2020mm, bao gồm chân đỡ có chiều cao từ 100mm đến 150mm. Nhờ vào những thông số này, buồng vệ sinh được thiết kế một cách hợp lý, giúp tối ưu hóa không gian và tạo cảm giác riêng tư cho người dùng.
Độ bền cơ học cũng là một yếu tố quan trọng không thể bỏ qua. Tấm vách ngăn cần đáp ứng áp suất nén tối thiểu là 1430psi, điều này giúp nó không bị biến dạng khi chịu tác động lực mạnh. Ngoài ra, lớp phủ bề mặt cũng cần có độ cứng cao để đảm bảo tính thẩm mỹ và tuổi thọ cho sản phẩm.
Cuối cùng, với những tiêu chuẩn khắt khe như vậy, các sản phẩm vách ngăn vệ sinh không chỉ hướng tới độ bền mà còn đảm bảo an toàn sức khỏe và sự tiện nghi cho người sử dụng.

Quy định về vách ngăn vệ sinh hiện nay được thiết lập rõ ràng nhằm đảm bảo tính tiện nghi và phù hợp cho người dùng. Đối với buồng vệ sinh cho người trưởng thành, chiều cao tiêu chuẩn của vách ngăn là từ 190 cm đến 200 cm, với khổ tấm vách lý tưởng là 1220 mm x 1830 mm hay 1530 mm x 1830 mm. Điều này giúp tạo ra không gian riêng tư và thoải mái nhất cho người sử dụng.
Đối với trường hợp trẻ em, chiều cao vách ngăn giữa khu vực đi tiểu và bồn cầu được quy định là 1,20 mét. Điều này không chỉ đảm bảo an toàn mà còn giúp trẻ em có thể sử dụng dễ dàng hơn. Với các nhà vệ sinh công cộng, trường mầm non hay khu công nghiệp, cần chú ý đến việc lựa chọn chất liệu vách ngăn bền bỉ, thường là từ tấm compact hpl hay mfc.
Trong quá trình thi công, các bước chuẩn bị từ kiểm tra mặt bằng, lắp đặt đến vận hành thử rất quan trọng để đảm bảo chất lượng cuối cùng. Hơn nữa, phụ kiện sử dụng cần phải làm từ vật liệu inox hoặc hợp kim chất lượng cao để đảm bảo độ bền và chịu lực tốt.

Kích thước vách ngăn vệ sinh hiện nay rất đa dạng, nhưng các kích thước tiêu chuẩn chính là những lựa chọn phổ biến nhất. Thông thường, tấm vách compact sẽ có kích thước cao 1220mm và rộng 1830mm, hoặc cao 1530mm và rộng 1830mm. Độ dày phổ biến là 12mm và 18mm, phù hợp cho nhiều loại thiết kế.
Diện tích tối thiểu cho mỗi gian vệ sinh thường nằm trong khoảng từ 2,5m2 đến 3m2. Những kích thước chuẩn này cũng giúp tối ưu hóa trải nghiệm người dùng, như chiều rộng buồng vệ sinh nên đạt khoảng 900mm với chiều sâu từ 1200mm đến 1500mm, đảm bảo đủ không gian cho người sử dụng.
Ngoài ra, kích thước vách ngăn tiểu cũng có những quy chuẩn riêng. Ví dụ, vách tiểu treo thường có kích thước 400mm x 900mm hoặc 500mm x 900mm, trong khi vách tiểu đứng thì có kích thước 450mm x 1220mm hoặc 600mm. Những chỉ tiêu này không chỉ đáp ứng nhu cầu sử dụng mà còn tạo sự thoải mái trong không gian vệ sinh.

Trong lĩnh vực xây dựng vách ngăn vệ sinh, độ dày của tấm compact là yếu tố rất quan trọng. Các nhà sản xuất hiện nay chủ yếu cung cấp tấm có độ dày 12mm và 18mm. Trong đó, tấm dày 12mm được sử dụng phổ biến nhất, chủ yếu cho các công trình dân dụng như trường học, văn phòng.
Kích thước tiêu chuẩn cho tấm vách ngăn thường là 1220 x 1830mm hoặc 1525 x 1830mm. Chiều cao lý tưởng để lắp đặt vách ngăn thường rơi vào khoảng 190cm đến 200cm. Do đó, khoảng 1220mm x 1830mm hay 1530mm x 1830mm là những lựa chọn lý tưởng.
Khi lựa chọn vách ngăn vệ sinh, bên cạnh độ dày, người dùng cũng rất quan tâm đến độ bền và tính thẩm mỹ của sản phẩm. Tấm compact HPL với độ dày 12mm không chỉ bền mà còn mang lại vẻ đẹp hiện đại, vì vậy nó thường được ưa chuộng cho các công trình công cộng.
Như vậy, việc lựa chọn độ dày phù hợp không chỉ ảnh hưởng đến chất lượng công trình mà còn phản ánh sự chăm sóc đến nhu cầu sử dụng thực tế của người dùng.

Vách ngăn vệ sinh hiện nay rất đa dạng về vật liệu, giúp người tiêu dùng có nhiều sự lựa chọn phù hợp với nhu cầu sử dụng. Các vật liệu phổ biến bao gồm tấm xi măng DURAflex, gỗ, và thép sơn tĩnh điện. Đặc biệt, vách ngăn compact HPL được ưa chuộng nhờ khả năng chống nước và độ bền vượt trội.
Cấu tạo của vách ngăn compact HPL gồm nhiều lớp giấy kraft, được tẩm nhựa phenolic để tạo độ chắc chắn. Ngoài vách ngăn compact, còn có các loại như tấm Compact Density Fiber Board (CDF) và các tấm gỗ công nghiệp như MFC và MDF, mang lại sự linh hoạt trong thiết kế.
Nếu bạn đang tìm kiếm giải pháp chống nước và bền bỉ cho khu vệ sinh, tấm nhựa PVC hay vách ngăn nhựa xếp cũng là những lựa chọn không thể bỏ qua. Giá thành vách ngăn vệ sinh dao động từ 700.000 đến 1.450.000 VNĐ/m², tùy thuộc vào độ dày và chất liệu.
Nói chung, vách ngăn vệ sinh không chỉ đáp ứng yêu cầu về thẩm mỹ mà còn đảm bảo được chất lượng và độ bền, giúp tạo nên không gian sạch sẽ và thân thiện cho người sử dụng.

Vách ngăn vệ sinh Compact, hay còn gọi là Compact HPL, là một trong những lựa chọn hàng đầu cho căn phòng cần tính năng chịu nước và độ bền cao. Với vật liệu được sản xuất từ tấm Compact laminate, vách ngăn này đạt độ bền lên tới 20 năm, hoàn hảo cho môi trường vệ sinh thường xuyên tiếp xúc với nước và ẩm ướt.
Đặc biệt, các tấm vách ngăn Compact có khả năng chống cháy, chống ăn mòn và trầy xước tốt. Bề mặt nhẵn mịn của chúng không chỉ dễ vệ sinh mà còn kháng khuẩn, giúp đảm bảo tốt nhất sức khỏe cho người sử dụng. Nếu bạn gặp những vết bẩn khó xử lý, chỉ cần sử dụng hỗn hợp baking soda và nước, tránh dung dịch mạnh hay vải mài mòn.
Việc cải tạo vách ngăn cũ bằng vật liệu Compact còn giúp nâng cao tính thẩm mỹ và an toàn cho nhà vệ sinh. Khi sử dụng vách ngăn cũ, bạn có thể đối mặt với nhiều nguy cơ, nhưng với giải pháp mới này, bạn hoàn toàn có thể yên tâm về chất lượng và tuổi thọ.

Màu sắc của vách ngăn vệ sinh đóng một vai trò quan trọng trong việc tạo nên không gian sạch sẽ và thoải mái. Trong số nhiều lựa chọn, màu ghi và màu kem là hai màu phổ biến được ưa chuộng bởi tính dễ phối hợp và thân thiện với người sử dụng. Màu ghi, với sự thanh lịch, mang lại cảm giác hiện đại, trong khi màu kem tạo cảm giác ấm áp và dễ chịu.
Khi thiết kế không gian vệ sinh, việc chọn màu sắc phù hợp với không gian là điều cần thiết. Đối với nhà vệ sinh công cộng, những màu trung tính như xám, trắng hay xanh nhạt không chỉ tạo cảm giác sạch sẽ mà còn giúp cho người sử dụng cảm thấy thoải mái hơn. Những tấm vách ngăn compact có nhiều lựa chọn màu sắc khác nhau, từ màu trơn đến họa tiết vân gỗ hoặc giả đá, giúp không gian thêm phần sinh động.
Ngoài ra, các loại vách ngăn vệ sinh như Compact Maica hay Compact Polytech còn có độ bền cao, giá cả hợp lý, rất phù hợp cho việc sử dụng lâu dài. Chọn màu sắc cho vách ngăn không chỉ là vấn đề thẩm mỹ, mà còn là cách tạo nên ấn tượng tích cực cho người sử dụng.

Bộ phụ kiện vách ngăn vệ sinh compact là một phần thiết yếu giúp cố định và đảm bảo độ ổn định cho hệ thống vách ngăn. Những phụ kiện này không chỉ gồm chân inox 302 hoặc 304, tay nắm, khóa, bản lề mà còn có các phụ kiện hỗ trợ khác như u nhôm nốc và bát treo. Tất cả đều được thiết kế với tiêu chuẩn chất lượng cao, sẵn sàng phục vụ cho các nhà vệ sinh công cộng.
Điểm nổi bật của chân đỡ WC công cộng là tính năng linh hoạt khi kết hợp với độ dày vách ngăn từ 8 đến 14mm. Bên cạnh đó, các sản phẩm inox 201 và 304 mang lại sự bền bỉ, khả năng chống gỉ sét tuyệt đối, đặc biệt phù hợp với môi trường ẩm ướt. Những phụ kiện này có thiết kế đơn giản, giúp việc lắp đặt và sử dụng trở nên dễ dàng hơn bao giờ hết.
Ngoài ra, quý khách hàng còn được hưởng chính sách giao hàng miễn phí toàn quốc cho đơn hàng từ 1.000. Với giá cả hợp lý, sản phẩm phụ kiện vách ngăn vệ sinh chắc chắn sẽ là lựa chọn lý tưởng để xây dựng một không gian vệ sinh tiện nghi và hiện đại.

Tiêu chuẩn kỹ thuật cho vách ngăn vệ sinh đóng vai trò quan trọng trong việc đảm bảo tính an toàn và tiện nghi cho người sử dụng. Kích thước tấm vách ngăn vệ sinh phổ biến hiện nay gồm 1220 x 1830 mm, 1525 x 1830 mm, và 1830 x 2440 mm, với độ dày tiêu chuẩn là 12 mm và 18 mm.
Theo tiêu chuẩn TCVN, chiều cao tổng thể của vách phải đạt 2000 mm, đảm bảo sự riêng tư cần thiết. Những tấm vách ngăn làm từ hợp chất HPL có khả năng chống nước hoàn hảo, chống cháy hiệu quả và sở hữu độ bền lên đến 20 năm, tạo nên sự bền bỉ cho công trình.
Quy trình sản xuất vách ngăn bao gồm việc cắt tấm từ nguyên liệu chuẩn, đảm bảo mọi kích thước đều phù hợp với quy định kỹ thuật. Các chiều rộng tiêu chuẩn từ 800 đến 1000 mm, chiều sâu từ 1200 đến 1500 mm, giúp tối ưu hóa không gian mà vẫn đảm bảo sự thoải mái cho người dùng.
Tóm lại, việc tuân thủ tiêu chuẩn kỹ thuật không chỉ nâng cao chất lượng vách ngăn mà còn mang lại sự an toàn và tiện ích cho không gian vệ sinh.

Lắp đặt vách ngăn vệ sinh compact là một giải pháp thông minh cho không gian vệ sinh công cộng hiện nay. Với mức giá chỉ từ 500.000 VNĐ/m2, bạn có thể sở hữu những sản phẩm chất lượng, đảm bảo tính bền bỉ và thẩm mỹ cao. Vách ngăn compact có khả năng chống nước tuyệt đối, giúp duy trì độ bền trong môi trường ẩm ướt, rất thích hợp cho khí hậu miền Bắc.
Quy trình thi công diễn ra rất nhanh gọn, với tiến độ đạt 100m2/ngày. Đầu tiên, chúng tôi chuẩn bị mặt bằng và dụng cụ cần thiết, sau đó đo đạc và đánh dấu vị trí lắp đặt để đảm bảo tính chính xác. Tiếp theo là lắp đặt khung và các phụ kiện, sau đó cắt và lắp đặt vách ngăn theo kích thước yêu cầu.
Ngoài ra, việc dễ vệ sinh và chống ẩm mốc cũng là điểm cộng lớn cho vách ngăn vệ sinh compact. Với mẫu mã đa dạng và tính năng vượt trội, sản phẩm này không chỉ mang lại sự tiện nghi mà còn rất thẩm mỹ cho không gian sử dụng. Nếu bạn đang có nhu cầu lắp đặt vách ngăn vệ sinh, hãy liên hệ với chúng tôi qua số điện thoại 0977.29.2988 để được tư vấn và báo giá chi tiết.

Trong bối cảnh hiện nay, việc áp dụng các tiêu chuẩn vách ngăn vệ sinh không chỉ đảm bảo tính thẩm mỹ mà còn nâng cao chất lượng và an toàn sử dụng. Sự lựa chọn vật liệu, thiết kế và cách bố trí hợp lý sẽ tạo ra không gian vệ sinh tiện nghi và hygienic. Các tiêu chuẩn này cũng góp phần nâng cao ý thức cộng đồng về việc duy trì môi trường sạch sẽ và văn minh. Do đó, việc tìm hiểu và tuân thủ các tiêu chuẩn vách ngăn vệ sinh là điều cần thiết cho mọi công trình, nhằm đem lại sự thoải mái và an toàn cho người sử dụng.