Physical Address
304 North Cardinal St.
Dorchester Center, MA 02124
Physical Address
304 North Cardinal St.
Dorchester Center, MA 02124

Khi xây dựng nhà cấp 4, việc thiết kế và thi công phần móng được xem là yếu tố quan trọng hàng đầu, ảnh hưởng trực tiếp đến tuổi thọ và độ an toàn của công trình. Trong đó, độ sâu móng nhà cấp 4 là thông số kỹ thuật mà bất kỳ chủ nhà hay đơn vị thi công nào cũng cần phải quan tâm. Vậy móng nhà cấp 4 sâu bao nhiêu là hợp lý? Có những tiêu chuẩn, yếu tố nào quyết định đến độ sâu này? Bài viết dưới đây sẽ chia sẻ chi tiết về tiêu chuẩn độ sâu móng, cách tính toán, chi phí và những lưu ý quan trọng khi làm móng nhà cấp 4 để bạn tham khảo.
Khi xây dựng nhà cấp 4, một trong những yếu tố quan trọng mà các kỹ sư cần cân nhắc là chiều sâu của móng. Chiều sâu này có thể dao động từ 0,5 đến 3,5 mét, tùy thuộc vào tình trạng nền đất. Thông thường, độ sâu tối thiểu chôn móng sẽ là 1,5 mét đến 3 mét.
Nếu nền đất cứng, bạn có thể đào sâu từ 0,5 đến 1,5 mét là đủ. Ngược lại, với nền đất yếu, chiều sâu nên được điều chỉnh lớn hơn, thường từ 1,2 mét trở lên, nhằm đảm bảo sự bền vững cho công trình. Đặc biệt, nếu đất yếu có độ sâu nhỏ hơn 4 mét, việc sử dụng móng cọc hoặc móng đơn là giải pháp tối ưu.
Điều quan trọng là chiều sâu chôn móng không nên nhỏ hơn 1/15 chiều cao của công trình và không lớn hơn 0,5 mét so với cos đất quy hoạch lân cận. Qua đó, việc xác định đúng chiều sâu móng sẽ giúp ngôi nhà của bạn vững chãi và bền bỉ theo thời gian.

Độ sâu của móng nhà cấp 4 là một trong những yếu tố quan trọng cần được xem xét kỹ lưỡng trong quá trình thiết kế. Thông thường, chiều sâu này dao động từ 0,5 đến 3,5 mét, tùy thuộc vào tình trạng cụ thể của nền đất. Nếu nền đất cứng và ổn định, bạn có thể đào sâu từ 80 đến 100cm. Ngược lại, nếu nền đất yếu hơn, có thể cần phải đào sâu hơn nữa, khoảng 120cm hoặc đến lớp đất cứng để đảm bảo tính vững chắc cho công trình.
Một quy tắc chung là độ sâu chôn móng không nên nhỏ hơn 1/15 chiều cao công trình và tối thiểu là 0,5 mét. Điều này giúp đảm bảo an toàn cho ngôi nhà trong suốt thời gian sử dụng. Theo đó, nếu bạn đang thiết kế một ngôi nhà cấp 4, hãy nên tham khảo ý kiến chuyên gia để xác định độ sâu móng thích hợp.
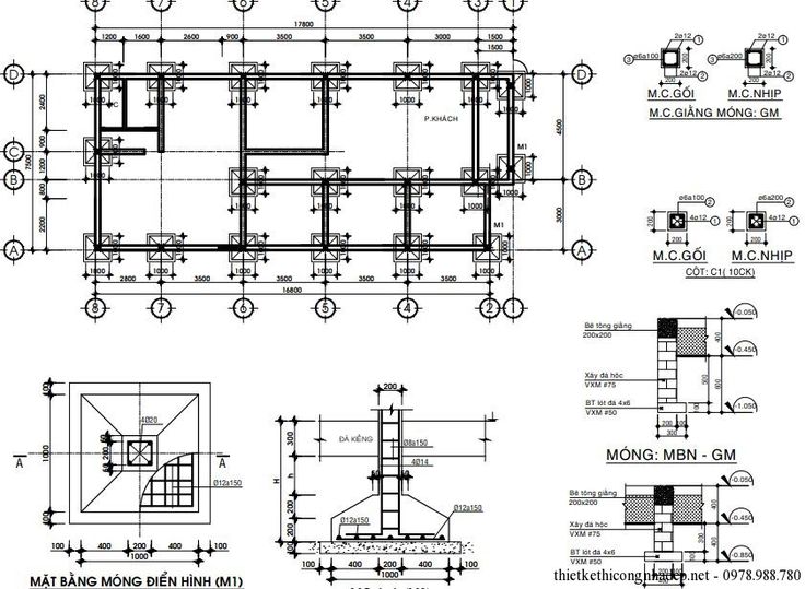
Móng nhà cũng có nhiều loại, như móng đơn, móng băng và móng bè, mỗi loại lại có độ sâu yêu cầu khác nhau. Do đó, việc hiểu rõ về các yếu tố ảnh hưởng đến độ sâu móng sẽ giúp ích rất nhiều cho quá trình thi công và độ bền của ngôi nhà.

Khi xây dựng nhà cấp 4, việc xác định độ sâu móng là rất quan trọng, ảnh hưởng trực tiếp đến sự ổn định và an toàn của công trình. Móng nông thường được xây dựng trong hố đào có độ sâu từ 1,2 đến 3,5 mét. Độ sâu này không chỉ tùy thuộc vào loại nền đất mà còn phụ thuộc vào tải trọng của toàn bộ ngôi nhà.
Thông thường, độ sâu chôn móng tối thiểu nên không nhỏ hơn 1/15 chiều cao công trình và lớn hơn 0,5 mét. Chẳng hạn, đối với đất cứng, chiều sâu móng có thể chỉ cần từ 80 đến 100 cm. Tuy nhiên, nếu nền đất yếu, cần khoan sâu hơn 120 cm hoặc cho đến khi đạt được lớp đất cứng.
Móng được thi công trên hố đào trần, sau đó sẽ lấp lại, giúp đảm bảo tính ổn định. Đồng thời, lớp bê tông trên cùng của móng cần có bề dày tối thiểu 10 cm để đảm bảo sức chịu tải tối ưu. Qua đó, các tiêu chuẩn này giúp người xây dựng có được nền móng vững chắc cho ngôi nhà của mình.

Khi xây dựng nhà cấp 4, độ sâu chôn móng là yếu tố rất quan trọng, bởi nó liên quan trực tiếp đến sự ổn định và bền vững của ngôi nhà. Có nhiều yếu tố ảnh hưởng đến quyết định này, trong đó điều kiện địa chất và địa chất thủy văn là hàng đầu. Nếu nền đất yếu, ta thường phải lựa chọn độ sâu từ 1,2m trở lên để đảm bảo chắc chắn.
Đặc điểm của công trình cũng tác động lớn đến chiều sâu móng. Công trình có tải trọng nặng cần móng sâu hơn để phân tán lực. Bên cạnh đó, điều kiện thời tiết là một yếu tố cần cân nhắc. Nên chọn mùa khô để thi công phần móng, hạn chế rủi ro như ngập nước hay sụt lún, giúp tiết kiệm chi phí và thời gian.
Một điều cần lưu ý là cần thiết kế móng một cách cẩn thận, tránh thay đổi tùy tiện, vì điều này có thể phá vỡ tính toán ban đầu, gây mất cân bằng tải trọng. Từ đó, không chỉ ảnh hưởng đến độ bền mà còn đến sự an toàn tổng thể của công trình. Móng nhà cấp 4 thực sự là một cốt lõi quan trọng, quyết định chất lượng của cả ngôi nhà.

Khi xây dựng nhà cấp 4, việc xác định độ sâu của móng là rất quan trọng. Đối với móng nông, chiều sâu chôn móng thường dao động từ 1,5m đến 3m. Tuy nhiên, bạn cần lưu ý rằng độ sâu này không nên nhỏ hơn 0,5m so với mặt đất xung quanh. Điều này giúp đảm bảo tính ổn định của công trình.
Cách tính chiều sâu chôn móng có thể được thực hiện dựa vào loại đất nền. Nếu nền đất cứng, bạn có thể chỉ cần chôn sâu từ 80 đến 100cm. Với nền đất trung bình, chiều sâu này nên đạt từ 100 đến 120cm, trong khi với nền đất yếu, việc đào sâu hơn 120cm hoặc đến tầng đất cứng là cần thiết.
Ngoài ra, một quy tắc chung là chiều sâu móng không nên nhỏ hơn 1/15 chiều cao công trình. Điều này có thể giúp bạn tính toán một cách chuẩn xác hơn, đảm bảo rằng móng nhà của bạn có thể chịu được tải trọng từ trên xuống. Vì vậy, việc tư vấn từ các kỹ sư xây dựng cũng là điều rất cần thiết để có được sự an toàn cho ngôi nhà của bạn.

Độ sâu móng nhà cấp 4 thường dao động từ 0,5 đến 3,5 mét, tùy thuộc vào tình trạng nền đất tại vị trí xây dựng. Nếu nền đất cứng và ổn định, độ sâu có thể từ 0,5 đến 1,5 mét là đủ. Trên nền đất yếu hơn, chúng ta thường phải đào sâu hơn, từ 1,2 mét trở lên để đảm bảo sự kiên cố cho công trình.
Đối với các loại móng băng, chiều sâu tối thiểu thường dao động khoảng 1,5 mét đến 3 mét, nhằm đảm bảo sự vững chãi cho ngôi nhà. Khi thi công, cần lưu ý rằng độ sâu này cũng cần phải phù hợp với tải trọng của công trình.
Ngoài ra, việc tính toán chi phí làm móng cũng rất quan trọng. Chi phí cho móng băng một phương có thể tính dựa trên diện tích tầng 1 và đơn giá thi công, thường dao động từ 50% đến 70%. Việc xác định độ sâu móng không chỉ đảm bảo sự ổn định cho ngôi nhà mà còn tiết kiệm chi phí cho chủ đầu tư.
Do đó, việc khảo sát nền đất và tư vấn chuyên môn là rất cần thiết trong quá trình thiết kế xây dựng.

Khi làm móng nhà cấp 4, việc khảo sát địa chất kỹ lưỡng là bước đầu tiên và rất quan trọng. Địa chất của nền đất quyết định đến loại móng nào sẽ được sử dụng. Nếu nền đất yếu, bạn nên chọn móng bè để đảm bảo sự vững chắc cho ngôi nhà.
Độ sâu của móng cũng là yếu tố cần lưu ý. Đào móng đúng độ sâu sẽ giúp phân tán tải trọng đều, tránh tình trạng lún hay sụt lún sau này. Đừng quên lựa chọn vật liệu xây dựng chất lượng cho việc đổ móng, vì đây là nền tảng cho toàn bộ công trình, ảnh hưởng trực tiếp đến sự bền vững và an toàn.
Khi thi công, hãy tuân thủ quy trình kỹ thuật và tránh thi công vào mùa mưa, để hạn chế tình trạng nước mưa làm ảnh hưởng đến chất lượng bê tông. Cuối cùng, hãy bảo dưỡng bê tông đúng cách sau khi đổ để đảm bảo độ cứng và bền lâu, giúp ngôi nhà của bạn đứng vững theo thời gian.

Khi xây dựng nhà cấp 4, việc thi công móng là một trong những phần quan trọng nhất để đảm bảo an toàn và bền vững cho công trình. Trước tiên, chúng ta cần khảo sát địa chất thật kỹ lưỡng. Điều này giúp xác định loại móng nào phù hợp với đặc điểm của đất nền. Ví dụ, với những khu vực đất yếu hơn 4m, việc lựa chọn móng sâu kết hợp với cọc tràm sẽ là giải pháp hiệu quả.
Sau khi xác định được loại móng cần thiết, quy trình thi công phải được thực hiện đúng kỹ thuật. Một lưu ý quan trọng là không nên kê gạch dưới dầm thép, vì điều này có thể làm gạch thẩm thấu nước, ảnh hưởng đến độ bền của móng. Ngoài ra, khi đổ bê tông, tốt nhất là lót bạt phía dưới để giữ độ ẩm cần thiết cho bê tông.
Cuối cùng, hãy luôn chuẩn bị đầy đủ vật liệu và tinh thần làm việc cho đội ngũ thi công. Một ngôi nhà với móng chắc khỏe sẽ tạo ra một nền tảng vững chắc cho cả công trình và sự an tâm cho gia đình bạn.

Chi phí làm móng nhà cấp 4 là một yếu tố quan trọng cần tính toán kỹ lưỡng trước khi bắt tay vào xây dựng. Tùy theo loại móng như móng đơn, móng cọc hay móng băng, mức chi phí sẽ có sự khác biệt rõ rệt. Trung bình, chênh lệch từ 1.200.000 VNĐ đến 2.000.000 VNĐ/m² là phổ biến cho các loại móng.
Diện tích nhà cũng ảnh hưởng mạnh đến chi phí. Với một ngôi nhà có diện tích khoảng 100m², thì phần chi phí cho móng có thể dao động từ 108 triệu đến 360 triệu VNĐ. Nếu nền đất tốt, ta có thể áp dụng phương pháp đổ móng đơn với giá trị 1.200.000 VNĐ/m². Tuy nhiên, nếu gặp phải nền đất yếu, đầu tư cho các loại móng chắc chắn hơn như móng cọc sẽ là lựa chọn hợp lý.
Ngoài ra, còn phải tính đến các khoản chi phí như nguyên vật liệu và nhân công, cũng như các yếu tố địa tầng của khu vực xây dựng. Việc đưa ra một bảng dự toán chi tiết trước khi khởi công sẽ giúp bạn chủ động hơn về tài chính trong toàn bộ quá trình.

Khi thiết kế nhà cấp 4, việc xác định độ sâu móng là rất quan trọng để đảm bảo sự ổn định và bền vững cho ngôi nhà. Đối với nền đất tự nhiên, bạn có thể lựa chọn móng nông với độ sâu từ 0,5 đến 1,5 mét, hoặc sử dụng hố đá và móng bè. Độ sâu trung bình của móng thường dao động từ 1,2m trở lên, tùy theo đặc điểm của nền đất và tải trọng công trình.
Thông thường, các loại móng như móng đơn có độ sâu từ 0,8 đến 1,2m, trong khi móng băng sẽ sâu hơn, từ 1,2 đến 1,8m. Nếu cần thiết, móng cọc cũng có thể được sử dụng, và độ sâu sẽ phụ thuộc vào khảo sát địa chất. Đặc biệt, độ sâu chôn móng không nên nhỏ hơn 1/15 chiều cao công trình, một yếu tố cực kỳ quan trọng để đảm bảo sự an toàn.
Chọn lựa loại móng phù hợp không chỉ giúp ngôi nhà chịu lực tốt mà còn kéo dài thời gian sử dụng. Vì vậy, việc tìm hiểu kĩ lưỡng và tính toán chính xác sẽ giúp bạn xây dựng một ngôi nhà cấp 4 vững chắc và an toàn cho gia đình.

Trong bài viết này, chúng ta đã cùng nhau khám phá những yếu tố quan trọng liên quan đến việc xác định độ sâu móng nhà cấp 4. Những yếu tố như loại đất, tải trọng công trình và điều kiện thời tiết đều đóng vai trò quyết định trong việc chọn độ sâu móng phù hợp. Nhìn chung, việc đầu tư thời gian và công sức để tính toán chính xác sẽ giúp đảm bảo sự an toàn và bền vững cho ngôi nhà của bạn. Hy vọng rằng những thông tin trên sẽ hỗ trợ bạn trong quá trình xây dựng, mang lại một mái ấm vững chắc cho gia đình.