Physical Address
304 North Cardinal St.
Dorchester Center, MA 02124
Physical Address
304 North Cardinal St.
Dorchester Center, MA 02124

Nhôm hệ 700 hiện nay được sử dụng rộng rãi trong ngành xây dựng nhờ vào những ưu điểm vượt trội về chất lượng, độ bền và tính thẩm mỹ. Việc lựa chọn mặt cắt nhôm phù hợp sẽ giúp các công trình đạt hiệu quả sử dụng cao, đồng thời đáp ứng các yêu cầu về kỹ thuật và thiết kế. Bài viết dưới đây sẽ cung cấp cho bạn cái nhìn tổng quan về mặt cắt nhôm hệ 700, từ cấu tạo, đặc điểm, ưu điểm vượt trội cho đến ứng dụng thực tế, bảng báo giá và địa chỉ cung cấp uy tín. Hãy cùng khám phá chi tiết trong các phần tiếp theo!
Cửa nhôm hệ 700, hay còn gọi là nhôm cỏ hệ 700, là một trong những sản phẩm được ưa chuộng nhất trên thị trường hiện nay. Với thiết kế đơn giản nhưng tinh tế, cửa nhôm hệ 700 thường bao gồm khung nhôm, kính dán hoặc kính cường lực, mang lại sự sang trọng cho không gian sống. Điểm nổi bật của hệ này là độ dày thành nhôm chỉ từ 0,55mm đến 1,0mm, giúp tiết kiệm chi phí mà vẫn đảm bảo chất lượng.
Một trong những lý do khiến cửa nhôm hệ 700 được nhiều người lựa chọn là vì độ bền cao và dễ dàng lắp đặt. Khung nhôm có độ dày trung bình từ 0,5 đến 0,7mm, mang lại sự vững chắc cho sản phẩm. Thêm vào đó, các loại kính sử dụng thường là kính cường lực, có khả năng chống va đập tốt, đảm bảo an toàn cho người dùng.
Ngoài ra, bảng giá cửa nhôm hệ 700 rất cạnh tranh, dao động từ 775.000đ/m² đến 1.300.000đ/m² tùy theo chủng loại và màu sắc. Việc đa dạng về màu sắc cũng khiến sản phẩm này phù hợp với nhiều phong cách kiến trúc khác nhau.

Cửa nhôm hệ 700 đang ngày càng nhận được sự quan tâm của người tiêu dùng nhờ vào những tính năng vượt trội của nó. Được sản xuất từ nhôm cao cấp với độ bền cao và khả năng chịu lực tốt, cửa nhôm này không chỉ mang lại sự an toàn mà còn đảm bảo tính thẩm mỹ cho ngôi nhà. Thành nhôm của hệ 700 thường có độ dày từ 0.5 đến 0.7mm, đủ để đảm bảo sự chắc chắn trong từng thiết kế.
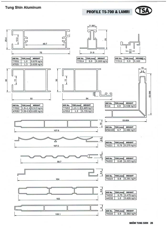
Một điểm đặc biệt của cửa nhôm hệ 700 là khung nhôm được gia cố bằng các thanh thép, giúp tăng cường tính ổn định. Chiều sâu cơ bản của hệ này là 70mm, cùng với rãnh kính rộng 11mm, thuận lợi cho việc lắp đặt kính dán hay kính cường lực. Mặt cắt khung bao và đố cửa cũng được thiết kế hợp lý, tạo nên sự đồng bộ và cân đối.
Ngoài ra, cửa nhôm hệ 700 cũng rất linh hoạt với nhiều kiểu dáng như cửa sổ lùa hai cánh hay cửa chia ô, phù hợp với nhiều không gian khác nhau. Những đặc điểm này giúp cửa nhôm hệ 700 trở thành một lựa chọn hoàn hảo cho mọi công trình kiến trúc hiện đại.

Nhôm hệ 700 Yng Hua là một trong những sản phẩm nổi bật trong ngành nội thất hiện đại. Với đặc tính nhẹ nhưng cực kỳ bền, chúng trở thành lựa chọn phổ biến cho nhiều công trình. Cửa nhôm hệ 700 được chế tạo từ nhôm định hình cao cấp, giúp chống ăn mòn và oxi hóa, đảm bảo độ bền bỉ theo thời gian.
Ngoài ra, cửa này còn được gia cố bằng các thanh thép, tăng khả năng chịu lực, giúp cửa có thể đối mặt với mọi điều kiện thời tiết khắc nghiệt. Kích thước khung bao là 70 x 30 mm, khe kính khả dụng từ 5 đến 8 mm, thích hợp với nhiều loại kính khác nhau.
Một điểm đáng chú ý là trọng lượng nhẹ, với độ dày khoảng 1mm và cấu trúc rỗng bên trong, giúp việc thi công và lắp đặt dễ dàng hơn. Bạn sẽ không cần lo lắng về việc di chuyển hay nâng cửa. Hơn nữa, hệ nhôm 700 còn mang lại giá cả phải chăng, phù hợp với nhiều ngân sách.

Cửa nhôm hệ 700 của Đại Tân là một lựa chọn lý tưởng cho nhiều công trình nhờ vào những ưu điểm nổi bật. Được làm từ nhôm cao cấp với độ dày trung bình từ 0.5 đến 0.7mm, sản phẩm này không chỉ đảm bảo độ bền cao mà còn có khả năng chịu lực tốt. Cửa nhôm hệ 700 được gia cố bằng các thanh thép giúp gia tăng tính an toàn và độ chắc chắn, làm cho nó trở thành lựa chọn phổ biến cho cửa chính của nhà ở, văn phòng.
Một điểm đáng chú ý là giá thành của cửa nhôm hệ 700 thường khá rẻ, giúp giảm thiểu chi phí đầu tư cho các chủ đầu tư. Với thiết kế đơn giản, cửa nhôm này dễ dàng mở và đóng, mang lại sự thông thoáng và ánh sáng tự nhiên cho không gian sống. Bên cạnh đó, hệ cửa này cũng có đa dạng màu sắc như trắng bóng, nâu, vàng hay vân gỗ, phù hợp với nhiều phong cách thiết kế khác nhau.
Mặc dù tính thẩm mỹ có phần hạn chế nhưng cửa nhôm hệ 700 vẫn được yêu thích nhờ vào sự tiện lợi và hiệu quả. Thời gian thi công cũng được rút ngắn, giúp chủ đầu tư hoàn thiện công trình nhanh chóng mà vẫn đảm bảo chất lượng.

Thanh nhôm hệ 700 là một trong những lựa chọn phổ biến cho các công trình lớn như biệt thự hay nhà phố. Với chiều sâu cơ bản 70mm và kích thước rãnh kính 11mm, hệ nhôm này cho phép lắp đặt kính thông dụng một cách dễ dàng. Đặc biệt, mã số hệ cửa đi Ynghua 700 như 7051, 7052, 7053, và 7001, 7002 mang đến sự đa dạng trong thiết kế và ứng dụng.
Một trong những ưu điểm nổi bật của thanh nhôm hệ 700 là khả năng cách nhiệt tuyệt vời, nhờ có cầu cách nhiệt. Đồng thời, độ bền bề mặt của hệ này cũng rất cao, giúp cho sản phẩm giữ được vẻ đẹp và chức năng trong thời gian dài. Tuy nhiên, giá thành của hệ nhôm này thường cao hơn một số hệ phổ thông khác.
Khi lựa chọn thanh nhôm hệ 700, người dùng nên chú ý đến thương hiệu và tiêu chuẩn chất lượng. Đồng thời, việc trừ kích thước cửa sổ lùa cũng rất quan trọng để đảm bảo sự chính xác trong quá trình thi công. Nếu bạn đang tìm kiếm một giải pháp chất lượng cho công trình của mình, nhôm hệ 700 chắc chắn là một lựa chọn đáng cân nhắc.

Báo giá mặt cắt nhôm hệ 700 là sự lựa chọn hoàn hảo cho những ai yêu thích sự kết hợp giữa thẩm mỹ và chất lượng. Với bề mặt nhôm được xử lý kỹ lưỡng và lớp sơn tĩnh điện bền màu, cửa nhôm hệ 700 luôn giữ được vẻ đẹp sáng bóng và sang trọng, mang lại không gian sống hiện đại cho mỗi gia đình.
Việc lắp đặt cửa nhôm này rất dễ dàng, giúp tiết kiệm thời gian và công sức cho người sử dụng. Các sản phẩm từ hệ 700 có đa dạng loại mã, từ cửa đi hai cánh cho đến các loại vách ngăn nhôm kính. Giá cả cho những dòng sản phẩm này cũng rất đa dạng, với mức giá dao động từ 800.000 đến 1.800.000 đồng/m² tùy theo thiết kế và kích thước.
Nếu bạn đang tìm kiếm một giải pháp vừa tiết kiệm vừa đẹp mắt cho ngôi nhà của mình, cửa nhôm hệ 700 chắc chắn sẽ là một sự lựa chọn không thể bỏ qua. Các thiết kế linh hoạt và khỏe khoắn của hệ 700 hứa hẹn sẽ làm hài lòng cả những khách hàng khó tính nhất.

Khi so sánh mặt cắt nhôm hệ 700 với các hệ khác, chúng ta có thể thấy rằng đây là một lựa chọn hợp lý cho nhiều nhu cầu. Với chiều sâu cơ bản 70mm và độ dày từ 1.1mm đến 1.4mm, nhôm hệ 700 mang lại độ cứng cao và khả năng chịu lực tốt. Điều này khiến sản phẩm trở nên bền bỉ trong môi trường sử dụng hàng ngày.
Nếu bạn đang tìm kiếm cửa nhôm cho không gian nhỏ và ngân sách hạn chế, hệ 500 sẽ phù hợp hơn. Trong khi đó, hệ 1000 lại được ưa chuộng nhờ vào độ thẩm mỹ cao và khả năng cách nhiệt tuyệt vời. Tuy nhiên, nhôm hệ 700, với tính năng chống nước và chịu va đập ở mức cơ bản, vẫn đáp ứng tốt cho những ai cần một lựa chọn an toàn và ổn định.
Một điểm cần lưu ý là cửa nhôm hệ 700 có giá thành khá hợp lý, nhưng không thể cạnh tranh với các hệ cao cấp hơn về độ thẩm mỹ. Tuy nhiên, nhôm hệ 700 lại dễ lắp đặt và phục vụ cho nhiều ứng dụng khác nhau, do đó thực sự là một lựa chọn đáng cân nhắc.

Nếu bạn đang tìm kiếm địa chỉ cung cấp mặt cắt nhôm hệ 700 chất lượng tại TP.HCM, thì Nam Tiến Window là một điểm đến lý tưởng. Chúng tôi có hai địa chỉ để bạn thuận tiện ghé thăm: 15 Đường TA15, Phường Thới An, Quận 12 và 94/11 Lưu Chí Hiếu, Phường Tây Thạnh, Quận Tân Phú. Bạn có thể liên hệ qua điện thoại để được tư vấn trực tiếp: 028 35073957 hoặc 0912203475.
Mặt cắt nhôm hệ 700 được thiết kế đa dạng, đáp ứng nhiều nhu cầu sử dụng như cửa sổ, cửa đi, cửa lùa và cả cửa kết hợp vách ngăn. Sản phẩm nổi bật với tính năng cách âm, cách nhiệt tốt cũng như độ bền cao, mang lại sự thoải mái và an toàn cho không gian sống của bạn.
Giá cả của cửa nhôm hệ 700 cũng rất hợp lý, giao động từ 850,000 đến 1,800,000 VNĐ/m² tùy theo loại sản phẩm. Với chất lượng thi công tốt và mẫu mã đa dạng, Nam Tiến Window cam kết mang đến sự hài lòng cho mọi khách hàng. Hãy đến với chúng tôi để trải nghiệm dịch vụ tốt nhất!

Cuối cùng, mặt cắt nhôm hệ 700 hiện đang trở thành lựa chọn hàng đầu trong xây dựng và thiết kế công trình hiện đại nhờ vào nhiều ưu điểm vượt trội. Với khả năng chịu lực tốt, độ bền cao và tính linh hoạt trong thiết kế, dòng sản phẩm này không chỉ đáp ứng yêu cầu thẩm mỹ mà còn đảm bảo hiệu suất sử dụng lâu dài. Việc ứng dụng mặt cắt nhôm hệ 700 trong các dự án kiến trúc không chỉ góp phần nâng cao chất lượng công trình, mà còn phù hợp với xu hướng tiết kiệm năng lượng và bảo vệ môi trường hiện nay. Sự lựa chọn thông minh này chắc chắn sẽ mang lại giá trị bền vững cho những công trình trong tương lai.