Physical Address
304 North Cardinal St.
Dorchester Center, MA 02124
Physical Address
304 North Cardinal St.
Dorchester Center, MA 02124

Cầu thang là yếu tố quan trọng trong kiến trúc nhà ở, không chỉ ảnh hưởng đến thẩm mỹ, công năng mà còn đảm bảo an toàn trong quá trình sử dụng. Một trong những tiêu chí quan trọng khi thiết kế cầu thang là chiều rộng, bởi nó tác động trực tiếp đến khả năng lưu thông cũng như sự thuận tiện cho các thành viên trong gia đình. Bài viết dưới đây sẽ tổng hợp những thông tin cần thiết về chiều rộng cầu thang như tiêu chuẩn, quy định, kích thước phù hợp, cùng những lưu ý khi thiết kế và tối ưu hóa cầu thang cho từng loại nhà, giúp bạn có lựa chọn hợp lý nhất cho không gian sống của mình.
Chiều rộng cầu thang tối thiểu là một yếu tố quan trọng trong thiết kế nhà ở, ảnh hưởng đến sự an toàn và tiện nghi cho người sử dụng. Thông thường, chiều rộng tối thiểu được khuyến nghị là từ 80cm đến 120cm. Đây là kích thước giúp người trưởng thành có thể di chuyển dễ dàng qua lại mà không gặp khó khăn.
Khi thiết kế cầu thang, cần lưu ý đến bề ngang vai của người trưởng thành, chiều rộng của bậc thang nên gấp rưỡi bề ngang vai để đảm bảo an toàn. Chiều rộng tối ưu cho các căn nhà phố hoặc nhà ống thường nằm trong khoảng 80-100cm, nhằm tối ưu hóa không gian mà vẫn đảm bảo khả năng di chuyển thuận tiện.
Ngoài ra, chiều rộng mặt bậc thang cũng cần được chú trọng. Kích thước lý tưởng cho mặt bậc thường khoảng 26cm đến 30cm, giúp tạo sự thoải mái khi chân tiếp xúc. Chúng ta cũng nên nhớ rằng độ dốc lý tưởng của cầu thang từ 33 đến 36 độ, điều này cũng góp phần tạo nên sự an toàn và tính thẩm mỹ cho ngôi nhà.

Chiều rộng cầu thang là một yếu tố rất quan trọng trong thiết kế nhà ở, ảnh hưởng không chỉ đến sự an toàn mà còn đến tính tiện nghi khi di chuyển. Đối với các nhà dân dụng, chiều rộng cầu thang thường dao động từ 80cm đến 120cm. Kích thước này đảm bảo đủ chỗ cho người đi lại thoải mái mà không gây cản trở.
Đối với cầu thang gác lửng, chiều rộng tiêu chuẩn sẽ nhỏ hơn, thường từ 60cm đến 90cm, để phù hợp với không gian hẹp hơn. Bậc thang cũng cần có chiều rộng từ 25cm đến 30cm, nhằm tạo điều kiện an toàn cho người sử dụng, đảm bảo bàn chân có đủ diện tích tiếp xúc để tránh trượt ngã.
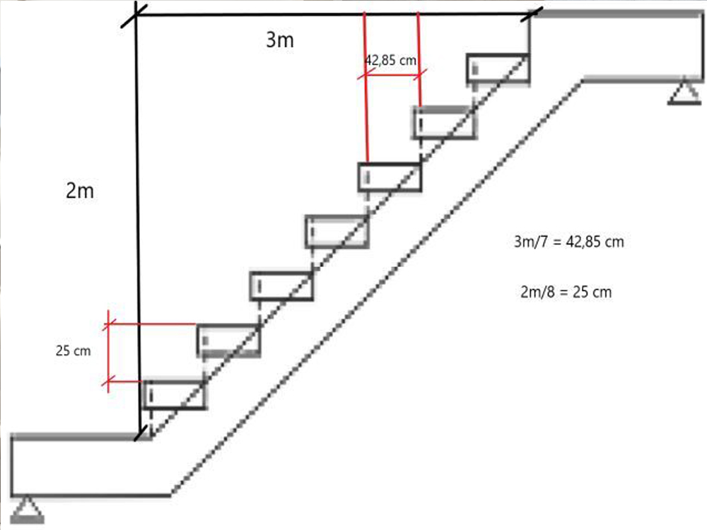
Chiều cao bậc thang lý tưởng nên nằm trong khoảng 15cm đến 18cm, vì nếu cao hơn sẽ làm tăng độ dốc, gây khó khăn và nguy hiểm cho người sử dụng. Việc tuân thủ đúng các tiêu chuẩn này không chỉ tạo không gian sống an toàn mà còn tạo điều kiện thuận lợi cho việc di chuyển hàng ngày.

Khi thiết kế cầu thang cho nhà ở, kích thước là yếu tố quan trọng cần lưu ý. Đối với nhà ống nhỏ hoặc có gác lửng, chiều rộng cầu thang khoảng 60cm là phù hợp. Trong khi đó, cầu thang cho không gian gia đình thường có chiều rộng từ 80 đến 120cm. Điều này tạo không gian thuận lợi hơn cho việc di chuyển.
Chiều cao bậc thang cũng rất quan trọng. Thông thường, độ cao bậc thang nên nằm trong khoảng 15 đến 18cm, điều này giúp cho việc lên xuống trở nên dễ dàng hơn. Đối với chiều rộng của mặt bậc, ít nhất là 25cm, nhưng phổ biến nhất là khoảng 26cm, để đảm bảo bước đi an toàn và thoải mái.
Còn đối với cầu thang thoát hiểm, chiều rộng tối thiểu cần đạt 90cm để đảm bảo an toàn trong các tình huống khẩn cấp. Trong trường hợp nhà ở có nhiều tầng, chiều cao từ sàn tầng dưới đến sàn tầng trên thường dao động khoảng 3,6m, với số bậc cầu thang lý tưởng vào khoảng 21 hoặc 25 bậc. Những yếu tố này không chỉ đảm bảo tính thẩm mỹ mà còn giúp tăng cường an toàn cho mọi thành viên trong gia đình.

Tập trung vào sự hài hòa:
* Kích thước cầu thang phù hợp mang đến không gian sống tiện nghi
Tập trung vào tính thẩm mỹ:
* Cầu thang cân đối tô điểm kiến trúc ngôi nhà bạn
Tập trung vào chức năng:
* Kích thước cầu thang đảm bảo an toàn và thoải mái di chuyển
Tập trung vào sự đa dạng:
* Khám phá kích thước cầu thang lý tưởng cho từng ngôi nhà
Chiều rộng cầu thang là yếu tố rất quan trọng trong thiết kế nhà ở, ảnh hưởng lớn đến sự tiện nghi và an toàn. Theo quy định, chiều rộng tối thiểu của cầu thang thường từ 60 cm cho các không gian nhỏ như nhà ống hay gác xép. Tuy nhiên, đối với các hộ gia đình, chiều rộng lý tưởng nên từ 80 đến 120 cm để đảm bảo sự thoải mái khi di chuyển.
Nếu bạn thiết kế cầu thang cho không gian rộng rãi hơn, chiều rộng từ 120 đến 150 cm sẽ giúp dễ dàng hơn trong việc di chuyển đồ đạc, đặc biệt là các vật dụng cồng kềnh. Ngoài ra, mặt bậc cầu thang nên có chiều rộng từ 25 đến 30 cm. Việc này không chỉ tạo cảm giác thoải mái mà còn giúp đảm bảo sự cân đối khi di chuyển lên xuống.
Bên cạnh đó, chiều cao của bậc thang cũng rất quan trọng, lý tưởng nhất là từ 15 đến 18 cm. Nếu vượt quá 18 cm, cầu thang sẽ trở nên khó đi và có thể gây nguy hiểm cho người dùng. Chính vì vậy, việc tuân thủ các quy định này không chỉ giúp thiết kế cầu thang đẹp mắt mà còn đảm bảo an toàn cho mọi người trong ngôi nhà.

Khi thiết kế cầu thang cho không gian sống của gia đình, chiều rộng là yếu tố cần được chú ý hàng đầu. Chiều rộng chuẩn của cầu thang nên nằm trong khoảng 75cm đến 120cm, với chiều rộng tối thiểu 80cm để đảm bảo hai người có thể dễ dàng tránh nhau, cũng như thuận tiện khi vận chuyển đồ đạc.
Đối với cầu thang của nhà ống nhỏ hoặc gác lửng, chiều rộng khoảng 60cm sẽ là lựa chọn hợp lý. Tuy nhiên, nếu không gian cho phép, rộng 90cm là lý tưởng để tạo sự thoải mái khi di chuyển. Chiều cao của mỗi bậc thang cũng nên được bố trí từ 15-18cm, để tránh tình trạng cầu thang quá dốc gây khó khăn cho việc leo lên hoặc xuống.
Bên cạnh đó, chiều rộng mặt bậc cần đạt từ 25cm đến 30cm, đây là kích thước đủ an toàn cho cả trẻ nhỏ và người lớn tuổi. Tay vịn cũng đóng vai trò quan trọng, nên được thiết kế cao từ 85cm đến 90cm để tạo cảm giác an toàn khi sử dụng.

Khi thiết kế cầu thang cho ngôi nhà, việc tối ưu hóa chiều rộng là rất quan trọng để đảm bảo an toàn và thuận tiện cho người sử dụng. Chiều rộng tối thiểu của cầu thang nên đạt 90 cm, nhưng lý tưởng nhất là từ 100 đến 120 cm. Điều này giúp không gian thoáng đãng hơn và dễ dàng di chuyển, đặc biệt là khi có nhiều người cùng sử dụng.
Đối với bậc thang, chiều rộng lý tưởng nằm trong khoảng 25 cm đến 30 cm. Độ rộng này không chỉ tạo điều kiện cho bàn chân đứng vững mà còn giúp giảm thiểu rủi ro trượt ngã. Bậc thang quá hẹp sẽ gây khó khăn cho việc di chuyển, và điều này rất cần thiết, nhất là đối với những ngôi nhà có trẻ nhỏ hoặc người lớn tuổi.
Ngoài ra, độ dốc của cầu thang cũng cần được chú ý. Nên giữ độ dốc trong khoảng từ 33° đến 36° để đảm bảo an toàn và không khiến người sử dụng cảm thấy mệt mỏi. Với việc cải tạo cầu thang, bạn cũng có thể cân nhắc đổi mới lan can hoặc màu sơn để làm cho không gian thêm phần hấp dẫn mà vẫn giữ được công năng sử dụng.

Chiều rộng cầu thang có vai trò quan trọng trong việc đảm bảo lưu thông và an toàn cho ngôi nhà. Theo tiêu chuẩn, bậc cầu thang nên có chiều rộng tối thiểu là 25cm, tương đương với bước chân trung bình của người trưởng thành. Nếu bậc thang quá hẹp, việc di chuyển sẽ trở nên khó khăn, tiềm ẩn nguy cơ té ngã và gây cảm giác không an toàn.
Ngoài ra, chiều rộng tổng thể của cầu thang cũng cần được chú ý. Tối thiểu là 90cm để một người có thể dễ dàng di chuyển lên xuống. Kích thước lý tưởng từ 100 đến 120cm không chỉ tạo sự thoải mái mà còn giúp khí lưu thông giữa các tầng trong ngôi nhà tốt hơn. Nếu cầu thang quá rộng, lại có nguy cơ chiếm nhiều diện tích và làm mất cân đối kiến trúc.
Đặt cầu thang ở vị trí hợp lý cũng rất quan trọng. Tránh đặt ở trung tâm ngôi nhà để không làm sinh khí bị hút cạn, ảnh hưởng đến tài lộc và sức khỏe của cả gia đình. Một cầu thang thiết kế hợp lý sẽ không chỉ thuận lợi trong việc di chuyển mà còn góp phần làm đẹp cho ngôi nhà.

Chiều rộng cầu thang là một yếu tố quan trọng không chỉ về mặt thiết kế mà còn liên quan đến phong thủy. Để đảm bảo an toàn và thuận tiện cho việc di chuyển, chiều rộng bậc thang tối thiểu nên đạt 25 cm, tương đương với bước chân của người trưởng thành. Tuy nhiên, chiều rộng bậc cầu thang tốt nhất nên ở mức khoảng 26 cm và không vượt quá 30 cm.
Ngoài ra, chiều rộng toàn bộ cầu thang cũng rất quan trọng. Kích thước phù hợp sẽ dao động từ 80 cm đến 120 cm, trong đó chiếu nghỉ lý tưởng nhất có chiều rộng khoảng 90 cm. Đặc biệt, với những ngôi nhà biệt thự lớn, chiều rộng có thể lên đến 1,5 mét.
Bên cạnh đó, số lượng bậc thang cũng cần được lưu ý, thường là 17, 21 hoặc 25 bậc, giúp cân bằng năng lượng trong không gian sống. Một cầu thang được thiết kế hợp lý không chỉ đảm bảo tính thẩm mỹ mà còn mang lại sự an lành và hạnh phúc cho gia chủ.

Cầu thang trong nhà ống không chỉ là phương tiện di chuyển giữa các tầng mà còn góp phần tạo nên không gian sống thoải mái và an toàn. Chiều rộng cầu thang thường nằm trong khoảng từ 80cm đến 120cm, đây là kích thước lý tưởng để đảm bảo đủ chỗ cho việc di chuyển. Nếu không gian hạn chế, chiều rộng 80cm vẫn có thể đáp ứng được yêu cầu sử dụng mà không gây cản trở.
Chiều rộng bậc thang là một yếu tố quan trọng không kém. Thông thường, bậc thang nên có chiều rộng từ 25cm đến 30cm để tạo cảm giác vững chãi khi bước. Chiều cao của bậc thang lý tưởng khoảng 15-18cm, giúp việc di chuyển dễ dàng và không gây mệt mỏi. Nếu chiều cao trên 18cm có thể khiến cầu thang trở nên dốc, điều này tiềm ẩn nhiều nguy hiểm, đặc biệt với trẻ nhỏ.
Ngoài ra, chiều rộng thân ngang cầu thang cũng cần được chú ý. Kích thước lý tưởng thường từ 75-90cm, với chiều rộng thân ngang khoảng 25-27cm. Đối với cầu thang gác xép, chiều rộng khoảng 60cm là hợp lý, giúp tiết kiệm diện tích mà vẫn đảm bảo an toàn cho người sử dụng. Các yếu tố này khi được cân nhắc một cách kỹ lưỡng sẽ tạo ra một cầu thang vừa an toàn, vừa tiện nghi cho ngôi nhà của bạn.

Khi thiết kế cầu thang, yếu tố chiều rộng là rất quan trọng. Chiều rộng tối ưu cho cầu thang nên nằm trong khoảng từ 900 đến 1.200 mm, với chiều rộng tối thiểu là 800 mm để đảm bảo an toàn và tiện nghi cho người sử dụng. Điều này không chỉ giúp cho việc di chuyển lên xuống dễ dàng mà còn giảm nguy cơ tai nạn.
Chiều rộng của mặt bậc, phần mà chân tiếp xúc, nên đạt khoảng 240 đến 300 mm. Kích thước này cho phép mọi người bước chân thoải mái và ổn định. Nếu rộng quá 300 mm, có thể gây khó khăn và không cần thiết cho người dùng.
Ngoài ra, việc xác định độ dốc cũng rất quan trọng. Độ dốc hợp lý thường dao động từ 18 đến 33 độ. Một cầu thang với chiều cao bậc từ 150 đến 180 mm sẽ mang lại sự dễ dàng trong việc di chuyển. Còn tay vịn nên cao từ 800 đến 1.000 mm để đảm bảo an toàn cho những người sử dụng.
Cuối cùng, trong thiết kế cầu thang, việc tính toán cẩn thận và tuân thủ các tiêu chuẩn là rất cần thiết để tạo ra một không gian an toàn và thẩm mỹ cho ngôi nhà.

Trong thiết kế cầu thang, chiều rộng tối thiểu là yếu tố quan trọng không chỉ đảm bảo tính an toàn mà còn tạo cảm giác thông thoáng cho không gian. Để đáp ứng nhu cầu sử dụng và lưu thông, chiều rộng cầu thang cần được quy định rõ ràng, thường từ 1m trở lên. Điều này không chỉ giúp người sử dụng dễ dàng di chuyển mà còn giảm thiểu nguy cơ ùn tắc và tai nạn. Việc chú trọng đến tiêu chuẩn này không chỉ phản ánh tính chuyên nghiệp trong thiết kế mà còn góp phần nâng cao chất lượng cuộc sống của con người.