Physical Address
304 North Cardinal St.
Dorchester Center, MA 02124
Physical Address
304 North Cardinal St.
Dorchester Center, MA 02124

Trong lĩnh vực xây dựng, bản vẽ là “ngôn ngữ chung” thể hiện ý tưởng, thiết kế và kỹ thuật thi công của một công trình. Tuy nhiên, việc đọc và hiểu đúng bản vẽ xây dựng không phải ai cũng nắm rõ, đặc biệt với những người mới bắt đầu hoặc chưa có chuyên môn sâu. Bài viết này sẽ giúp bạn tìm hiểu chi tiết cách đọc bản vẽ xây dựng, bao gồm cách nhận biết các ký hiệu, cách xem bản vẽ thiết kế, bản vẽ kết cấu, hệ thống điện nước cũng như phân biệt các loại bản vẽ khác nhau và những lưu ý quan trọng cần nhớ khi đọc bản vẽ xây dựng.
Để đọc bản vẽ xây dựng một cách hiệu quả, bạn cần thực hiện một quy trình rõ ràng. Trước tiên, hãy bắt đầu từ bản vẽ mặt bằng tổng thể. Điều này giúp bạn hiểu bố trí không gian của công trình, xác định các khu vực chức năng và giao thông. Tiếp theo, chuyển sang bản vẽ mặt đứng, nơi bạn sẽ thấy hình dáng của công trình từ các hướng khác nhau, từ đó hình dung được chiều cao và các chi tiết bên ngoài.
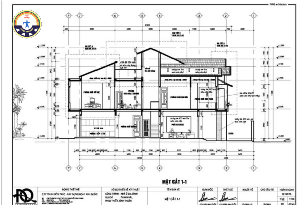
Khi đã nắm rõ mặt đứng, hãy tiếp tục với bản vẽ mặt cắt. Đây là lúc bạn sẽ tìm thấy thông tin về cấu trúc bên trong, như vị trí của móng và các tầng. Đặc biệt, khi đọc bản vẽ mặt cắt móng băng, bạn sẽ thấy cao độ cụ thể và các thông số kỹ thuật quan trọng. Cuối cùng, đừng quên xem bản vẽ phối cảnh, giúp bạn hình dung rõ nét hơn về tổng thể công trình.
Để đọc bản vẽ hiệu quả hơn, cần nắm vững các khái niệm cơ bản về kỹ thuật xây dựng, ký hiệu và kích thước. Điều này sẽ giúp bạn dễ dàng đối chiếu và kiểm tra các thông số, từ số lượng vật liệu đến kích thước không gian cho các thiết bị. Hãy thực hành thường xuyên để trở nên tự tin hơn trong việc đọc bản vẽ xây dựng.

Đọc ký hiệu trong bản vẽ xây dựng là một kỹ năng quan trọng mà bất kỳ ai trong ngành kiến trúc hay xây dựng cần nắm vững. Bản vẽ xây dựng chứa nhiều ký hiệu và chữ viết tắt, mỗi ký hiệu đều mang một ý nghĩa riêng, từ cầu thang, đường dốc cho đến cột, dầm. Ví dụ, ký hiệu cầu thang thường được thiết kế để thể hiện hình dạng và kích thước của chúng, giúp người đọc hình dung rõ ràng về không gian.
Ngoài ra, ký hiệu lỗ trống được sử dụng để chỉ những khu vực không có đồ vật kiến trúc, trong khi ký hiệu cửa sổ và cửa đi lại thường là hình chữ nhật hoặc hình vuông với các biểu tượng đặc trưng. Để hiểu bản vẽ một cách toàn diện, bạn phải làm quen với các ký hiệu này.
Các ký hiệu về chiều dài (L), chiều rộng (W) hay chiều cao (H) cũng rất cần thiết. Đặc biệt, ký hiệu đường kính (Ø) và bán kính đều hỗ trợ bạn trong việc định kích thước của các phần tử trong xây dựng. Tóm lại, việc nắm vững các ký hiệu trong bản vẽ không chỉ giúp bạn đọc hiểu mà còn đảm bảo công trình đạt chất lượng như mong muốn.

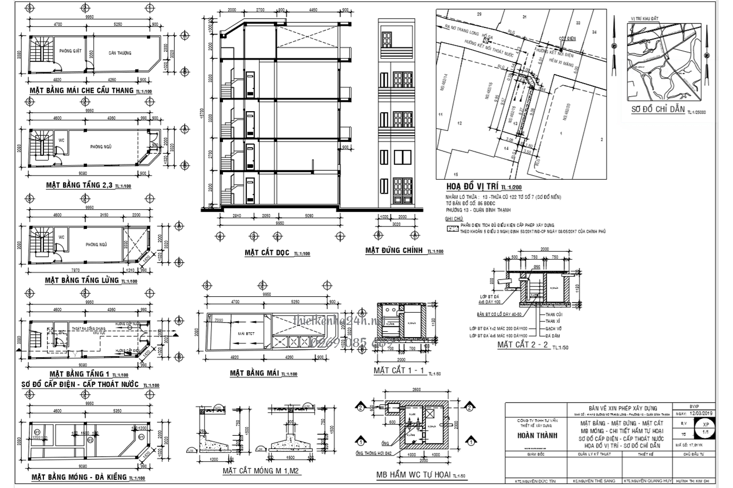
Đọc bản vẽ thiết kế không phải là việc quá khó khăn nếu bạn nắm rõ trình tự và cách thức. Đầu tiên, hãy bắt đầu với bản vẽ mặt bằng. Đây là bước quan trọng giúp bạn hình dung tổng thể không gian và bố trí các công năng. Tiếp theo, chuyển sang bản vẽ mặt đứng và mặt cắt để hiểu rõ hơn về chiều cao, cấu trúc và bố cục của công trình.
Khi đã nắm bắt được hình thái, đừng quên xem xét các bản vẽ phối cảnh ngoại thất. Chúng sẽ giúp bạn hình dung rõ nét về cách mà công trình sẽ hòa quyện với môi trường xung quanh. Cuối cùng, hãy dành thời gian để xem bản vẽ kết cấu để hiểu rõ hơn về các vật liệu và khung sườn của công trình.
Ngoài ra, việc nắm vững các ký hiệu, kích thước và hệ trục là rất quan trọng. Chúng sẽ giúp bạn đọc hiểu bản vẽ một cách chính xác hơn. Hãy nhớ kiểm tra khung tên để biết tỷ lệ bản vẽ, từ đó quy đổi kích thước chuẩn xác. Với những bước này, bạn sẽ tự tin hơn trong việc đọc và giám sát thi công công trình.

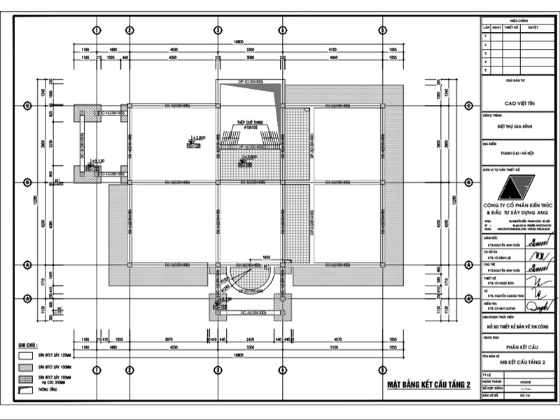
Đọc bản vẽ kết cấu là một kỹ năng rất quan trọng trong ngành xây dựng, và việc nắm vững cách đọc bản vẽ kết cấu thép sẽ giúp bạn hiểu rõ hơn về quá trình thi công. Khi bắt đầu, hãy chú ý đến từng bộ phận trong bản vẽ để nhận diện được chất lượng và khả năng chịu lực của kết cấu. Mỗi chi tiết đều có ý nghĩa riêng, vì vậy bạn cần phải xem xét chúng một cách kỹ lưỡng.
Trong bản vẽ kết cấu, những nét vẽ sẽ được sử dụng để phân biệt các bộ phận khác nhau. Ví dụ, cốt chịu lực thường được thể hiện bằng nét liền đậm, còn cốt phân bố hoặc cốt đai sẽ có cách thể hiện khác. Bên cạnh đó, bạn cũng cần chú ý đến kích thước và vị trí của các bộ phận để đảm bảo tính chính xác trong việc thi công.
Để có thể đọc hiểu bản vẽ kết cấu một cách hiệu quả, hãy bắt đầu từ bản vẽ mặt bằng, tiếp theo là mặt đứng, mặt cắt, và cuối cùng là bản vẽ phối cảnh. Mỗi bước đều quan trọng và giúp bạn hình dung toàn cảnh dự án dễ dàng hơn. Để tìm hiểu chi tiết hơn, bạn có thể tham khảo hướng dẫn từ Ths Ksxd Phạm Văn Lương qua link đăng ký trên trang http://cachdocbanve.vn/.

Đọc bản vẽ điện nước là một kỹ năng quan trọng trong việc thi công, sửa chữa hay thiết kế hệ thống cấp nước và điện. Để bắt đầu, bạn cần đảm bảo mình có đủ các bản vẽ cần thiết, từ sơ đồ nguyên lý đến chi tiết lắp đặt thiết bị. Điều này giúp bạn hình dung một cách tổng thể từng phần của hệ thống.
Tiếp theo, đọc bảng ghi chú và ký hiệu là bước không thể thiếu. Những ký hiệu này giúp bạn nhận diện các thiết bị, vị trí van và đường ống. Việc hiểu rõ cách bố trí sẽ giúp bạn hình dung được các kết nối giữa các thiết bị, từ đó dễ dàng hơn trong việc thi công.
Một điểm quan trọng khác là xác định cách đi đường ống, đặc biệt là khi có nhiều lớp sắt. Bạn cần hiểu được cách bố trí ống nhựa để đảm bảo an toàn và hiệu quả. Cuối cùng, việc làm quen với các bản vẽ như mặt bằng, mặt đứng hay phối cảnh sẽ giúp bạn có cái nhìn sâu sắc hơn về dự án. Như vậy, nắm vững cách đọc bản vẽ điện nước sẽ hỗ trợ bạn rất nhiều trong việc thực hiện một cách chính xác và nhanh chóng.

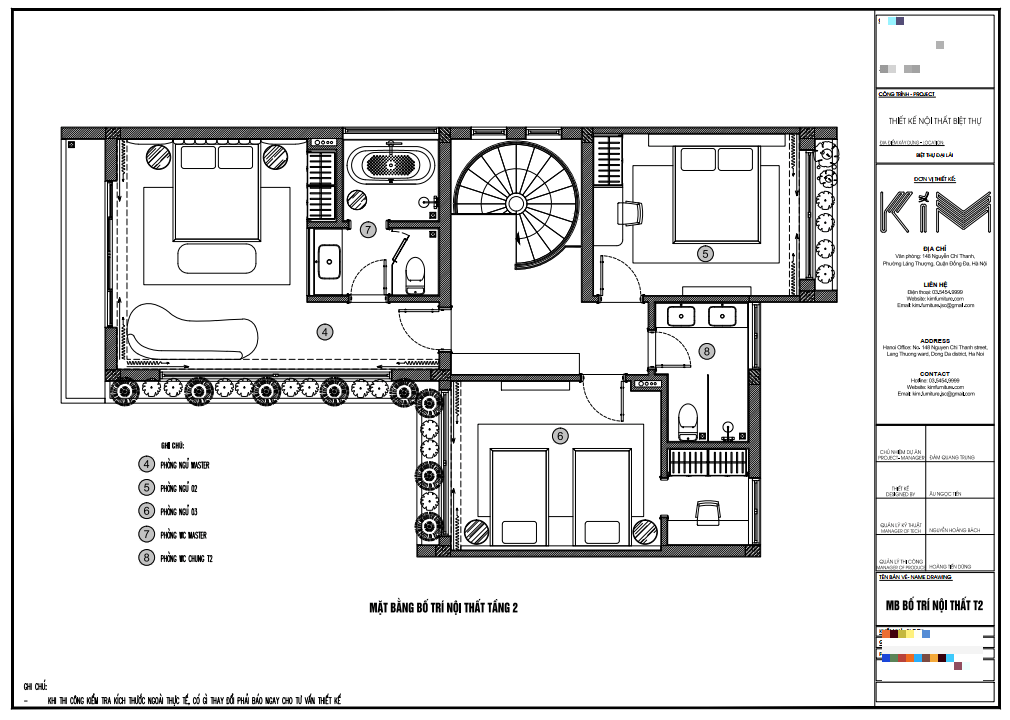
Để xem bản vẽ xây dựng một cách hiệu quả, đầu tiên, bạn cần hiểu rõ các phần cơ bản như tên bản vẽ, hệ trục, và kích thước. Hãy bắt đầu với bản vẽ mặt bằng, nơi bạn có thể hình dung tổng thể bố trí không gian, từ các phòng đến lối đi. Đây là một bước quan trọng giúp bạn có cái nhìn tổng quát về công trình.
Tiếp theo, hãy chuyển qua bản vẽ mặt đứng và mặt cắt. Những bản vẽ này giúp bạn hình dung cao độ và cấu trúc của nhà, từ đó dễ dàng theo dõi cách mà công trình sẽ được xây dựng. Ngoài ra, việc xem bản vẽ phối cảnh 3D cũng rất hữu ích, vì nó cho bạn một cái nhìn sinh động hơn về những gì sẽ được hiện thực hóa.
Cuối cùng, đừng quên chú ý đến kích thước, một yếu tố cực kỳ quan trọng trong bản vẽ xây dựng. Ký hiệu và tỷ lệ cũng cần được giải mã để đảm bảo rằng bạn hiểu đúng thiết kế. Nếu bạn dành thời gian suy ngẫm và thực hành theo từng bước, việc đọc bản vẽ sẽ trở nên đơn giản hơn rất nhiều!

Khi bắt đầu quá trình đọc bản vẽ xây dựng, bạn nên thực hiện theo bốn bước cơ bản để nắm bắt được thông tin một cách dễ dàng. Bước đầu tiên là đọc bản vẽ mặt bằng; đây là nơi giúp bạn hình dung tổng quan về thiết kế và phân bố không gian. Tiếp theo, bước thứ hai là xem bản vẽ mặt đứng. Điều này cho phép bạn hiểu hình dáng, chiều cao và các chi tiết bên ngoài của công trình.
Bước thứ ba rất quan trọng, đó là đọc bản vẽ mặt cắt. Ở đây, bạn có thể nhìn thấy các chiều cao cụ thể, trường hợp như bản vẽ mặt cắt móng băng sẽ chỉ ra độ cao của móng và cấu trúc phía dưới. Cuối cùng, bước thứ tư là tham khảo bản vẽ phối cảnh, giúp bạn có cái nhìn trực quan về toàn bộ công trình trong không gian ba chiều.
Ngoài ra, khi đọc bản vẽ, bạn cần chú ý đến các yếu tố như số lượng đồ nội thất, kích thước và vật liệu sử dụng. Việc nắm vững các khái niệm này không chỉ hỗ trợ cho kỹ năng đọc bản vẽ mà còn làm tăng khả năng quản lý dự án của bạn trong lĩnh vực xây dựng.

Bản vẽ xây dựng là một phần không thể thiếu trong quá trình thiết kế và thi công công trình. Dựa trên tính chất nội dung, bản vẽ được phân thành nhiều loại khác nhau, mỗi loại đảm nhiệm một vai trò riêng biệt. Đầu tiên, bản vẽ kiến trúc (ký hiệu KT) tập trung vào thiết kế không gian, hình thức và bố cục của công trình. Đây là bước khởi đầu quan trọng, giúp hình dung sơ bộ về hình dáng của ngôi nhà.
Tiếp theo là bản vẽ kết cấu (KC), cung cấp những thông tin chi tiết về cấu trúc chịu lực và các yếu tố an toàn. Bản vẽ về điện (Đ) và cấp nước (NC) cũng rất quan trọng, thể hiện cách thức dẫn điện, cấp nước và thoát nước trong công trình, đảm bảo cho sự vận hành tối ưu.
Ngoài ra, các bản vẽ thi công như bản vẽ mặt bằng sàn, mặt đứng, mặt cắt cũng cần thiết để hướng dẫn chính xác trong từng giai đoạn thi công. Như vậy, mỗi loại bản vẽ góp phần tạo nên một bức tranh hoàn chỉnh về công trình, từ thiết kế đến thực hiện.

Đọc bản vẽ xây dựng là một kỹ năng quan trọng trong ngành xây dựng, và để làm điều này hiệu quả, bạn cần tuân theo các bước cụ thể. Đầu tiên, hãy bắt đầu với bản vẽ mặt bằng. Bản vẽ này sẽ giúp bạn nắm rõ mối quan hệ giữa các hạng mục trong công trình và cách chúng tương tác với nhau.
Sau khi đã hiểu rõ bản vẽ mặt bằng, bạn chuyển sang bản vẽ mặt đứng, nơi thể hiện hình dáng và kích thước của công trình từ một hoặc nhiều hướng. Tiếp theo, bản vẽ mặt cắt sẽ cung cấp cho bạn thông tin chi tiết về cấu trúc bên trong của tòa nhà, từ đó giúp bạn hình dung rõ hơn về cách bố trí không gian.
Cuối cùng, đừng quên xem bản vẽ phối cảnh 3D để có cái nhìn tổng quan và sinh động về công trình. Hệ trục, kích thước và các ký hiệu là những phần không thể bỏ qua, vì chúng giúp bạn đọc hiểu bản vẽ một cách chính xác nhất. Với khoảng thời gian 15 phút dành cho việc đọc và suy ngẫm, bạn sẽ có thể nắm bắt được nội dung bản vẽ một cách dễ dàng và hiệu quả.

Khi đọc bản vẽ xây dựng, bạn nên bắt đầu bằng cách xác định loại bản vẽ mà mình đang xem, như bản vẽ mặt bằng, mặt đứng hay mặt cắt. Mỗi loại bản vẽ sẽ cung cấp thông tin khác nhau về công trình. Ví dụ, bản vẽ mặt bằng giúp bạn hình dung bố trí các phòng, trong khi bản vẽ mặt đứng lại thể hiện chiều cao và hình dáng bên ngoài.
Một điểm quan trọng khác là khung bản vẽ. Đó là hình chữ nhật giới hạn thông tin trên bản vẽ, thường được vẽ bằng nét liền đậm. Bạn nên chú ý đến quy định về khoảng cách khung so với mép giấy để đảm bảo bản vẽ được trình bày một cách chuyên nghiệp.
Bản vẽ phối cảnh cũng rất thú vị, vì nó cho bạn cái nhìn tổng thể về không gian 3D của công trình. Những chi tiết về hình dáng, bố cục và màu sắc sẽ giúp bạn hình dung rõ ràng hơn. Đừng quên tham khảo bảng chú giải để hiểu thêm về các ký hiệu và màu sắc được sử dụng, điều này sẽ cực kỳ hữu ích trong việc đọc và nắm bắt thông tin.

Qua quá trình tìm hiểu về cách đọc bản vẽ xây dựng, chúng ta nhận thấy việc nắm vững các ký hiệu, quy ước và cấu trúc của bản vẽ là rất quan trọng. Điều này không chỉ giúp chúng ta hiểu rõ hơn về thiết kế công trình mà còn đảm bảo tiến trình thi công diễn ra suôn sẻ và hiệu quả. Bằng việc rèn luyện khả năng đọc bản vẽ, các kỹ sư và kiến trúc sư sẽ dễ dàng hơn trong việc phối hợp công việc, phát hiện và khắc phục các vấn đề, từ đó góp phần xây dựng những công trình chất lượng và bền vững.