Physical Address
304 North Cardinal St.
Dorchester Center, MA 02124
Physical Address
304 North Cardinal St.
Dorchester Center, MA 02124

Móng băng là một trong những loại móng phổ biến trong xây dựng, đóng vai trò quan trọng trong việc truyền tải trọng từ công trình xuống nền đất. Việc bố trí thép móng băng đúng kỹ thuật không chỉ đảm bảo an toàn, độ bền mà còn giúp tiết kiệm chi phí, vật tư trong quá trình thi công. Bài viết dưới đây sẽ cung cấp cho bạn những thông tin chi tiết về cách bố trí thép móng băng, bao gồm nguyên tắc, quy trình thực hiện, tiêu chuẩn kỹ thuật, những lưu ý cần thiết và các kinh nghiệm thực tế nhằm đảm bảo công trình đạt chất lượng tối ưu nhất.
Bố trí thép trong móng băng là một công đoạn hết sức quan trọng, cần đảm bảo đúng vị trí, kích thước và khoảng cách giữa các thanh thép theo thiết kế đã được phê duyệt. Móng băng không chỉ giúp chịu lực mà còn phân bố đều tải trọng của công trình, góp phần tăng cường sự ổn định, nhất là trong những khu vực có nền đất yếu.
Khi thi công móng băng cho tầng hầm, các nhà thầu cần chú ý rằng nó phải được đặt sâu hơn nền tầng hầm một khoảng tối thiểu là 0, vì điều này sẽ giúp tăng cường khả năng chống lún cho công trình. Bố trí thép trong móng băng có thể hiểu đơn giản là việc tổ chức và tính toán cẩn thận để đặt các thanh thép sao cho tối ưu nhất.
Ngoài ra, móng băng còn phổ biến vì phương pháp thi công đơn giản, độ lún đều và chi phí tiết kiệm. Đây là lựa chọn lý tưởng cho những ngôi nhà có tải trọng không quá lớn. Khi áp dụng kỹ thuật đúng vào việc bố trí thép, chủ nhà không chỉ tiết kiệm được chi phí mà còn bảo đảm an toàn cho toàn bộ công trình.

Bố trí thép trong móng băng là một công việc rất quan trọng, ảnh hưởng trực tiếp đến độ ổn định và bền vững của công trình. Để có một móng băng tốt, các thanh thép cần được đặt đúng vị trí và kích thước, tuân thủ theo bản vẽ thiết kế. Việc bố trí này không chỉ yêu cầu độ chính xác mà còn cần phải tính toán cẩn thận để đảm bảo khả năng chịu lực.
Móng băng thường được thiết kế dưới dạng dải dài, có thể hoạt động độc lập hoặc giao nhau theo hình chữ thập. Đây là loại móng rất phổ biến trong các công trình dân dụng, giúp phân phối lực đều lên nền đất. Quá trình bố trí cốt thép trong móng băng bao gồm nhiều bước, từ việc chuẩn bị mặt bằng cho đến lắp ráp cốp pha và đổ bê tông.
Lưu ý rằng, các thanh thép phải được bố trí theo nguyên tắc chịu lực, với các lớp thép ở dưới không được nối ở khu vực bụng dầm. Việc này sẽ giúp bảo đảm tính liên kết và sự linh hoạt trong việc chọn lựa và bố trí cốt thép, từ đó nâng cao tuổi thọ và an toàn của công trình.

Quy trình bố trí thép trong móng băng là một phần quan trọng trong thi công xây dựng, đảm bảo an toàn và độ bền cho công trình. Móng băng, được sử dụng để phân bố trọng lực của công trình xuống nền đất, cần có cốt thép được bố trí đúng vị trí, kích thước và khoảng cách theo bản vẽ thiết kế. Điều này giúp gia tăng khả năng chịu lực và hạn chế biến dạng cho móng.
Trong quy trình thi công, bước đầu tiên là chuẩn bị mặt bằng, sau đó tiến hành đào móng để tạo không gian cho cốt thép. Sau khi đã ổn định mặt bằng, các thanh thép được gia công, uốn và lắp đặt sao cho chính xác. Cốt thép cần được giữ sạch sẽ, không để dính bùn đất hay dầu mỡ, nhằm đảm bảo liên kết tốt với bê tông.
Cuối cùng, cần lưu ý rằng cách bố trí thép phải đúng kỹ thuật, sử dụng các thanh thép chất lượng cao để đảm bảo hiệu quả của móng băng trong một thời gian dài. Những điều này góp phần không nhỏ vào sự thành công của dự án xây dựng.

Móng băng một phương là loại móng được bố trí theo một hướng duy nhất, thường là chiều ngang hoặc chiều song song. Việc chọn khoảng cách giữa các móng rất quan trọng, nó phụ thuộc vào điều kiện địa chất, tải trọng công trình và các yếu tố khác. Đặc biệt, trong trường hợp xây dựng tầng hầm, móng băng cần được đặt sâu hơn mặt đất ít nhất 0m để đảm bảo ổn định.
Khi thiết kế và thi công, các thanh thép thường được sử dụng là thép tròn, trơn hoặc thép có gờ (thép vằn), được bố trí song song với chiều lực chính của móng. Điều này giúp tối ưu hóa khả năng chịu lực và đảm bảo an toàn cho toàn bộ công trình. Liên kết các thanh thép bằng cách đan chúng lại với nhau đúng kỹ thuật cũng là một yếu tố then chốt.
Cách bố trí thép cho dầm móng băng cũng cần phải được tính toán kỹ lưỡng, đảm bảo rằng mọi yếu tố đều được xử lý sao cho hợp lý nhất. Việc thi công phần móng cần tuân thủ quy trình đúng cách, từ san lấp mặt bằng cho đến đóng cọc và tạo móng băng. Tất cả những điều này sẽ giúp công trình vững chắc và bền lâu.

Bố trí thép trong móng băng là một khâu rất quan trọng trong xây dựng, đảm bảo tính ổn định và chịu lực cho công trình. Quá trình này không chỉ đơn thuần là sắp xếp mà còn đòi hỏi sự chính xác về kích thước và vị trí các thanh thép như đã được thể hiện trong bản vẽ thiết kế. Nếu thiếu sót trong chiều rộng hay cấu tạo sẽ dễ gây ra tình trạng sụt lún, ảnh hưởng đến độ bền của móng.
Theo tiêu chuẩn TCVN 5574:2018, các thanh thép bố trí phải tuân thủ các quy định nghiêm ngặt về khoảng cách, đặc biệt là ở các phần chịu uốn. Điều này vô cùng thiết yếu trong các cấu kiện có chiều cao lớn hơn 700mm, nơi mà sự tính toán cẩn thận sẽ quyết định sự an toàn của toàn bộ công trình.
Quá trình thi công móng băng thường chia thành năm bước cơ bản. Bắt đầu từ khâu chuẩn bị, các kỹ sư và công nhân sẽ phải tiến hành kiểm tra và thực hiện các bước bố trí thép một cách khoa học để đảm bảo chúng chịu được lực tốt nhất. Chính vì vậy, việc tuân thủ quy trình và tiêu chuẩn là điều không thể lơ là.

Kết cấu thép của móng băng đóng vai trò quan trọng trong việc đảm bảo khả năng chịu lực và tính bền vững cho công trình xây dựng. Trước khi tiến hành bố trí thép, việc kiểm tra chất lượng thép là điều cần thiết. Thép phải có độ dẻo dai và bề mặt sạch sẽ, giúp việc chế tạo dễ dàng và ổn định hơn.
Khi bố trí thép, cần chú ý đến kích thước và cách thức bố trí theo tiêu chuẩn kỹ thuật. Một số lỗi phổ biến là kích thước móng không đúng bản vẽ hoặc cách bố trí thép sai quy định, dẫn đến nguy cơ giảm tính an toàn cho công trình. Đặc biệt, khi thi công trong các công trình lớn, cần đào sâu để tạo ra một nền móng vững chắc.
Cát, đá và các chất liệu khác cũng cần được kiểm tra để đảm bảo không ảnh hưởng đến chất lượng bê tông. Khoảng cách giữa các cốt thép cũng là yếu tố quan trọng; nên giữ khoảng cách 25mm cho cốt dưới và 30mm cho cốt trên. Sự chính xác trong bố trí, uốn các thanh thép tại các dầm giao nhau cũng sẽ giúp gia tăng độ bền cho công trình.

Kết cấu thép móng băng là một phần quan trọng trong xây dựng, đóng vai trò quyết định trong việc phân tán tải trọng của công trình. Móng băng thường có dạng dải dài, có thể bố trí độc lập hoặc giao nhau theo hình chữ thập. Việc bố trí thép trong móng băng không chỉ đơn thuần là sắp xếp mà còn đòi hỏi tính toán kỹ lưỡng để đảm bảo khả năng chịu lực và độ bền.
Quy trình bố trí thép bắt đầu với việc khảo sát địa chất và chuẩn bị mặt bằng. Sau đó, thi công móng cần đảm bảo các bước như đào móng, đổ bê tông lót, rồi mới đến giai đoạn lắp đặt cốt thép. Cốt thép chính được lắp đặt theo kích thước thiết kế, với các thanh được cắt và uốn đúng cách. Đặc biệt, các mối hàn hay nối phải đảm bảo chắc chắn để không làm giảm khả năng chịu lực của móng.
Kỹ thuật thi công cũng rất cần thiết, từ việc lựa chọn loại thép đến phương pháp cắt uốn. Cuối cùng, việc nghiệm thu cốt thép là bước không thể thiếu để đảm bảo mọi thứ đều đạt tiêu chuẩn trước khi tiến hành các bước thi công tiếp theo.

Móng băng là một trong những loại móng phổ biến trong xây dựng, đặc biệt cho những công trình dân dụng có tải trọng nhẹ. Cấu tạo của nó bao gồm lớp bê tông lót phía dưới, tạo nên bản nền móng liên tục. Đặc biệt, móng băng có thể thiết kế để phù hợp với tầng hầm, đòi hỏi phải đặt sâu hơn so với mặt đất khoảng 0,5 mét.
Một ưu điểm lớn của móng băng là khả năng chịu tải tốt và phân bố lực đều, giúp tăng cường sức bền cho công trình. Với các kích thước phổ biến như 5x17m, móng băng thường được thiết kế để có thể sử dụng linh hoạt, có thể nằm độc lập hoặc giao nhau theo hình chữ thập. Điều này không chỉ giúp tiết kiệm không gian mà còn tạo sự cân bằng cho toàn bộ công trình.
Ngoài ra, việc bố trí cốt thép trong móng băng rất quan trọng. Những chi tiết này đảm bảo rằng móng có thể chịu được các áp lực và tải trọng khác nhau trong quá trình sử dụng. Do đó, người thi công cần tuân thủ các tiêu chuẩn xây dựng mới nhất để tránh sai sót.

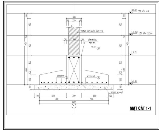
Bản vẽ bố trí thép móng băng là một yếu tố quan trọng trong thiết kế nhà ở, đặc biệt là đối với nhà một, hai và ba tầng. Điều này là do mỗi công trình có yêu cầu kỹ thuật riêng, dẫn đến sự khác biệt trong kích thước và cách bố trí thép. Chẳng hạn, kích thước dầm móng thông thường được thiết kế là 30 cm chiều rộng và 50 cm chiều cao, mang lại độ vững chắc cho công trình.
Móng băng không chỉ có vai trò chịu tải trọng chính mà còn phân bổ lực xuống nền đất một cách đồng đều. Kích thước bản móng thường rơi vào khoảng 900-1200 mm chiều rộng và 350 mm chiều cao. Sử dụng bê tông chắc chắn và thép cốt cách có độ dẻo dai sẽ giúp dễ dàng thi công và đảm bảo chất lượng cho phần móng.
Khi tiến hành gia công cốt thép, mọi người nên thực hiện theo đúng bản vẽ và kiểm tra kỹ càng. Thép cần được uốn nắn thẳng để đảm bảo độ bền và tính ổn định cho công trình. Điều này sẽ góp phần tạo nên một ngôi nhà an toàn và kiên cố trong suốt thời gian dài.

Móng băng một phương là loại móng được thiết kế để hoạt động theo một hướng duy nhất, có thể là chiều ngang hoặc chiều dọc. Khoảng cách giữa các móng này phụ thuộc vào nhiều yếu tố, như tải trọng và điều kiện địa chất. Móng băng thường có hình dạng dải dài, có thể được bố trí độc lập hoặc giao nhau tạo thành hình chữ thập.
Khi tính toán cốt thép cho móng băng, điều quan trọng là phải kiểm tra tính kháng uốn của cánh móng. Bước đầu tiên là xác định loại thép sẽ sử dụng, thường dựa vào bảng tra cứu để có giá trị ứng suất Rs phù hợp, chẳng hạn 280 MPa.
Tiếp theo, cần kiểm tra xem nền có đủ điều kiện làm việc như vật thể đàn hồi hay không. Việc tính toán này bao gồm việc kiểm tra biến dạng nền và độ lún ở tâm móng. Ví dụ, nếu bạn có cột ở giữa, thì cần tính toán chi tiết từ thép dầm đến thép cánh móng để đảm bảo chúng hoạt động hiệu quả trong công trình.
Cuối cùng, việc lập bảng tổng hợp thép, bao gồm cả các đoạn neo nối, sẽ giúp bạn tránh sai sót và đảm bảo chất lượng công trình.

Trong tác phẩm “Bố Trí Thép Móng Băng”, hình ảnh người cha hiện lên với lòng kiên cường và tình yêu thương vô bờ bến dành cho con cái. Ông không chỉ là người dẫn dắt mà còn là nguồn động lực, truyền cảm hứng cho con vượt qua mọi khó khăn trong cuộc sống. Qua từng trang viết, chúng ta cảm nhận rõ ràng sự hy sinh và trách nhiệm của một người cha đối với gia đình. Cuối cùng, “Bố Trí Thép Móng Băng” không chỉ là câu chuyện về tình cha mà còn là bài học quý giá về sự kiên trì và lòng quyết tâm trong hành trình chinh phục ước mơ.